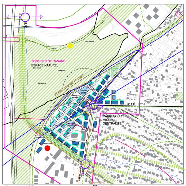
Le site est au bord de la rivière Touques, proche d’une zone d’activité et des coteaux pavillonnaires. En zone inondable, nous proposons une micro-centralité urbaine et paysagère avec une mixité d’usages au sein d’un espace renaturé élargi. Le projet est composé par couches successi
Read moreLe principe directeur pour la conception du nouveau quartier est la combinaison d'une densité bâti, d'une qualité d'habitabilité élevée et d'une grande variété de logements pour différentes populations et générations. L'aménagement paysager est adapté à la topographie. Par la dispositi
Read moreL'îlot de la Cité Louis Bertrand se situe dans la trame verte du coteau entre la Porte d'Ivry et le Fort d'Ivry. L'aménagement de la cité est l'occasion de renforcer et de clarifier son rôle dans le tissu urbain, et de hiérarchiser ses espaces extérieurs, banalisés par l'uniformité de leurs
Read moreL’immeuble de 16 logements se situe dans le quartier de Bois l’Abbé, en cours de rénovation urbaine par l’ANRU. Le projet inclut la modification de l’entrée qui donne actuellement sur un passage couvert peu valorisant, pour un accès par passerelle via le jardin de la résidence. Les part
Read moreRéouverture du parking de la Hêtraie Le parking souterrain La Hêtraie a deux deux niveaux et il est végétalisé en surface. Il est fermé depuis 2007 suite à une baisse de demande des habitants et souffre de remontées de nappe phréatique en R-2 ainsi que de dégradations structurelles. Avec
Read moreLimeil-Brévannes est une ville de 25.000 habitants en développement et composé en grande partie d’espaces naturels boisés (110ha sur les 693ha de la commune). Le projet de faire descendre la forêt en cœur de ville se situe de ce fait dans une logique territoriale. L’idée forte du projet
Read moreDans un site de grande qualité paysagère, le projet s'appuie sur les spécificités locales pour proposer un tissu urbain en capacité de répondre aux enjeux : offre de logements diversifiés, ville de la proximité, accès aux services, commerces, transports collectifs et modes doux, protection
Read moreA l'est de Paris, en Val de Marne, des emprises ont été réservées pour une autoroute reliant l'A4 et l'A86: la Voie de Desserte Orientale (VDO). En 2007 l'Etat abandonne le projet et prévoit une urbanisation raisonnée des sites. Le territoire de la VDO a de nombreuses qualités. A 15 km de Par
Read moreLe groupe immobilier La Hêtraie avec ces cinq bâtiments de R+9 à R+14 et 209 logements est situé en bordure communale de Limeil-Brévannes. L’ensemble du site nécessitait une réhabilitation et requalification globale.
Read moreLa terrasse du Bistro de l'Arche se situe au pied de la Grande Arche et donne directement sur le parvis de la Défense, le quartier d'affaires à l'ouest de Paris. Le parvis, grand espace ouvert et cadré par des bâtiments particuliers, est limité à l'ouest par la Grande Arche qui se situe sur le
Read moreLe groupe immobilier de La Hêtraie, un ensemble de 5 bâtiments de R+9 à R+14, est situé en bordure communale Est de Limeil-Brévannes en Val-de-Marne. L'ensemble du site, ouvert au quartier, est traversé par des usagers multiples. Le projet de la requalification des espaces ouvertes du groupe i
Read moreIl s’agit de la réhabilitation thermique d’un immeuble de logements situé dans le 15e arrondt. de Paris. Il est entouré d’un tissu urbain parisien dense avec des bâtiments de différentes époques. Le 23 rue d’Alleray a été construit sur une parcelle étroite et linéaire. A côté on
Read moreL’îlot des Fusains se situe au centre d'Aubervilliers, une commune en forte transformation urbaine. L’îlot est caractérisé par une opération de grands ensembles des années 1970 sur une parcelle industrielle. L'ensemble de l'îlot est aujourd'hui cloisonné et ses espaces extérieurs sont d
Read moreL'esquisse architecturale concerne la construction du siège de la société DIII - espaces contemporains à Obernai en Alsace. Le site est accessible depuis le nord. Le terrain est marqué par une forte pente orientée vers le sud-ouest et une série de maisons et villas de taille et typologie diff
Read moreIl s'agit d'une opération de rénovation de deux immeubles de la République Fédérale d'Allemagne dans le 16ème arrondissement de Paris. L'opération concerne le ravalement des façades côté rue des bâtiments 24/26 rue Marbeau et côté jardin du 24 rue Marbeau et la réfection de la couvertu
Read moreRéhabilitation d’un immeuble des années 1980 Il s’agit de la réhabilitation thermique d’un immeuble de logements situé dans le 15e arrondt. de Paris. Il est entouré d’un tissu urbain parisien dense avec des bâtiments de différentes époques. Nous souhaitons lui donner un esprit "ate
Read moreTrois connexions Le projet s'appuie sur différents liens et polarités, qui vont dessiner la ville Bad Kötzting à long terme. Le paysage se constitue par la superposition de trois espaces : le paysage fluvial le long de la rivière, le Kurpark au sud du centre ville et les jardins urbains c
Read moreUn nouveau paysage pour la plaine de Pierrelaye La forêt est à la fois le point de départ opérationnel et l'argument central du projet de l'aménagement de la plaine dans ses dimensions de programme et d'usage. La plaine est un espace dégradé et à l'abandon. 2017 sera l'année de la fin de
Read moreLe quartier du Lugo, au sein duquel se situe l’Usine Hollander, entre dans une phase de transformation urbaine. Les occupants de l’usine créative invitent les visiteurs des portes ouvertes à coconstruire un morceau de ville. La manufacture urbaine s’articule autour d’une maquette du quarti
Read moreLa gare de Juvisy-sur-Orge est la plus grande gare d’Ile-de-France hors Paris et constitue un nœud de transport. Le prolongement du tramway T7 entre Athis-Mons et Juvisy-sur-Orge Gare est en cours et à l’avenir la gare pourrait accueillir des TGV comme arrêt intermédiaire avant Paris Austerl
Read moreProjet d'agglomeration Grand Genève Le territoire d'étude du PACA Genève-Eaux Vives-Annemasse est constitué de quatorze communes situées dans la région transfrontalière entre la France et la Suisse. L'étude doit vérifier, via différents scénarii, si l'aménagement et le réaménagement
Read moreLa République du Tatarstan est une des régions la plus développée et industrialisée de la Russie avec une population urbain de 75%. Avec des sols riches en hydrocarbures, le gouvernement souhaite préparer les investissements d’avenir et a missionné un groupement pluridisciplinaire, piloté
Read moreLe site des Joncs Marins appartient à la vallée de l'Orge. Un site riche en diversité d'espaces naturels et de formes bâties. L'étude porte sur le Périmètre Régional d'Intervention Foncière, qui s'étend avec 171 ha sur Brétigny-sur-Orge, Saint-Germain-lès-Arpajon et Leuville-sur-Orge. Un
Read moreL’ensemble immobilier de l’Avre, construite en 1973, est caractéristique des grands ensembles des années 70. Elle compte 416 logements répartis dans 11 bâtiments de hauteurs R+4 à R+10. Notre mission s’inscrit dans un projet urbain plus large incluant la déconstruction de deux immeubles
Read moreLa ville de Vitoria (318000 hab.) se situe dans une agglomération portuaire et logistique qui constitue la porte d'entrée et de sortie de marchandises de l'état d'Espirito Santo. La région métropolitaine (1625000 hab.) est composée de 7 communes avec un développement économique, social et ur
Read moreIl s’agit de l’aménagement d’un plateau de bureau à La Défense. L’organisation du plan reste rationnelle, cependant une recherche sur les matières et les formes est mise en avant. Cet aspect est surtout remarquable dans l’aménagement de l’espace sanitaire. Il y a eu 3 propositions d
Read moreDéveloppement urbain et économique La ville de Goma est le chef lieu de la province du Nord-Kivu et se situe à l'est de la République Démocratique du Congo (RDC) à la frontière avec le Rwanda. En raison de son positionnement géographique, la ville n'a pas eu de développement urbain progr
Read moreIl s'agit de la rénovation lourde du siège Europe du Sud de la ZDF (chaine de télévision allemande) dans le XVIème arrondissement de Paris, composé de deux immeubles autour d'une cour centrale. L'opération concernait le ravalement partiel des façades et le remplacement de certaines fenêtres
Read moreLe terrain se situe au sud de la gare de Villennes-sur-Seine et se développe en direction est-ouest entre la rue des Iselles et le chemin de fer qui longe la Seine. Le bâtiment se situe sur la partie supérieure du terrain. En raison d'un fort dénivelé, le sous-sol se retrouve de plein pied avec
Read moreL’immeuble de 16 logements se situe dans le quartier de Bois l’Abbé, en cours de rénovation urbaine par l’ANRU. Le projet inclut la modification de l’entrée qui donne actuellement sur un passage couvert peu valorisant, pour un accès par passerelle via le jardin de la résidence. Les part
Read moreL’immeuble de 16 logements se situe dans le quartier de Bois l’Abbé, en cours de rénovation urbaine par l’ANRU. Le projet inclut la modification de l’entrée qui donne actuellement sur un passage couvert peu valorisant, pour un accès par passerelle via le jardin de la résidence. Les part
Read moreL’immeuble de logements se situe dans le quartier des Amandiers dans le XXème arrondissement de Paris. Les logements, les parties communes, la cour intérieure ainsi que le pignon sud sont retravaillés. Nous proposons la création de nouvelles ouvertures sur le pignon Sud pour plus de confort. N
Read moreRéouverture du parking de la Hêtraie Le parking souterrain La Hêtraie a deux deux niveaux et il est végétalisé en surface. Il est fermé depuis 2007 suite à une baisse de demande des habitants et souffre de remontées de nappe phréatique en R-2 ainsi que de dégradations structurelles. Avec
Read moreL’ensemble immobilier de l’Avre, construite en 1973, est caractéristique des grands ensembles des années 70. Elle compte 416 logements répartis dans 11 bâtiments de hauteurs R+4 à R+10. Notre mission s’inscrit dans un projet urbain plus large incluant la déconstruction de deux immeubles
Read more