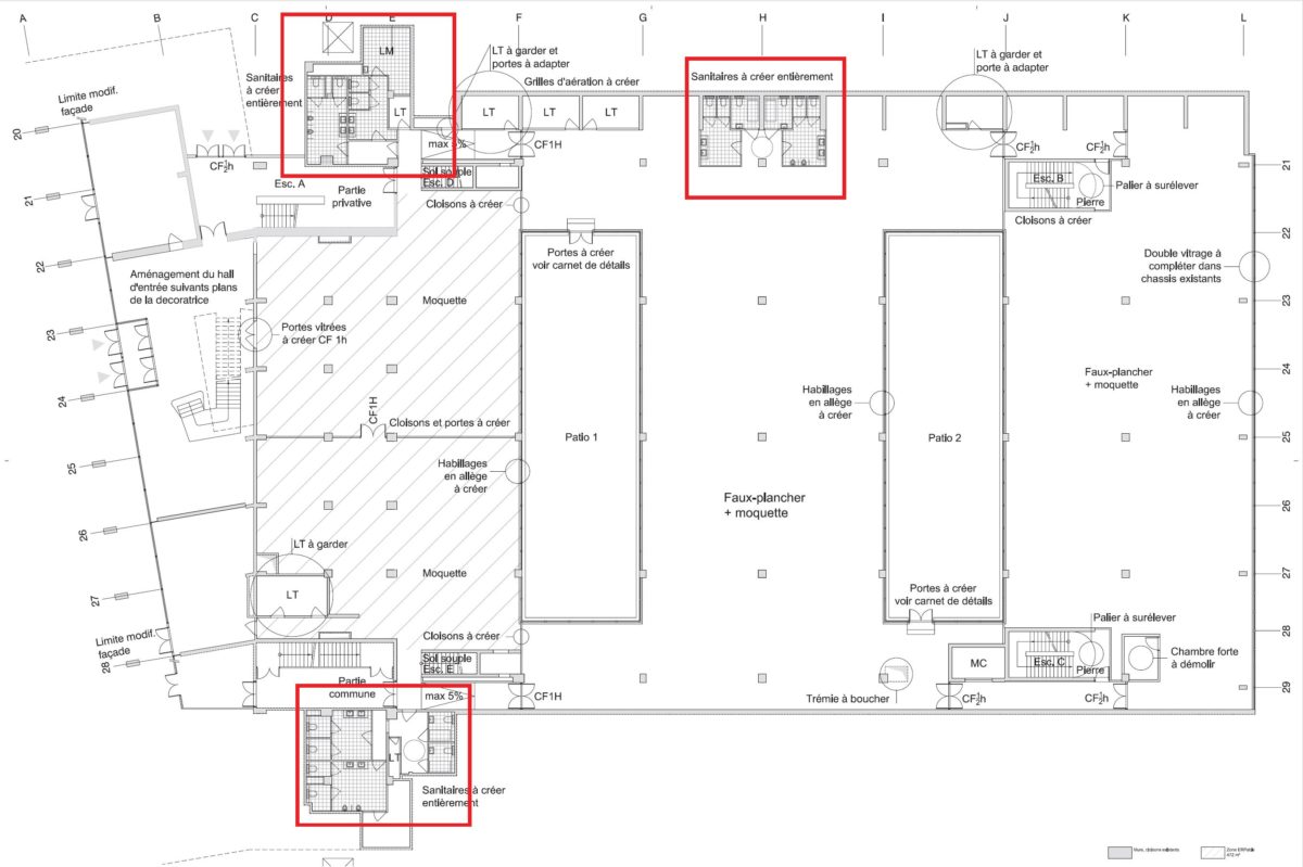
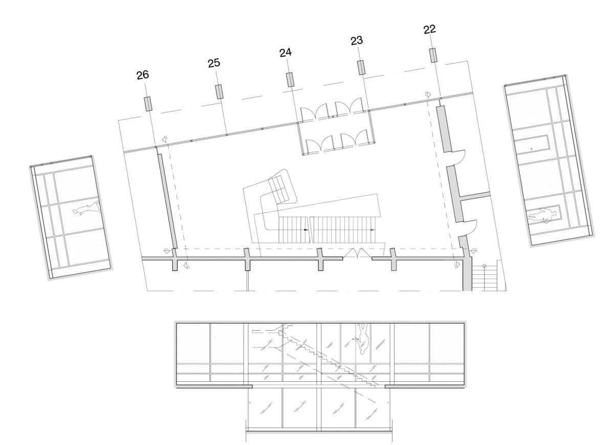
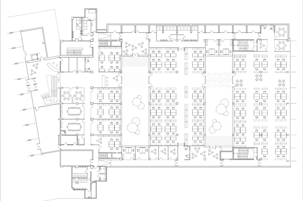
Concours : Réhabilitation de deux immeubles de logements – Paris (FR)
Notre agence RETHINK est avec nos partenaires dans la sélection finale pour la réhabilitation énergétique d'un groupe de 407 logements situé Porte de Vincennes - Paris 20eme. Une résidence de Paris Habitat.
Read more






























